
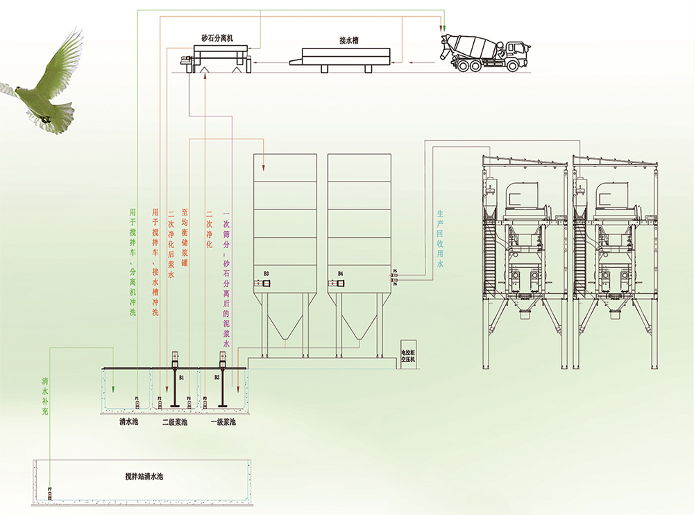
1.罐车倒入刷车位,红外线被切断,系统自动加清水与污水各半(时长60-90秒),罐车卸水至接水槽

2.分离机工作,石子、粗砂分别由皮带机送入临时料仓

3.含有细砂的浆水流入一级浆罐,浆液达到设定液位后

4.泵启动,浆水通过二次净化把细砂分离至临时料仓,无砂浆水进入二级浆罐,浆液达到设定液位后

5.泵启动,浆水进入储浆均衡罐,搅拌楼按试验室指令操作利用浆水

其间各罐搅拌器、喷淋器、细砂脱水机等设备按PLC设定程序自行起、闭,整个流程均为全自动化程序控制,无需人为操作。
整个系统不建沉淀池、不配压滤机、无需排淤清渣,废水、废渣全利用,彻底解决废水废渣堆排难及转出时产生二次污染的难题,将使传统的四级沉淀、清淤转渣的多重污染成为历史,真正实现了混凝土行业废水废渣零排放模式。